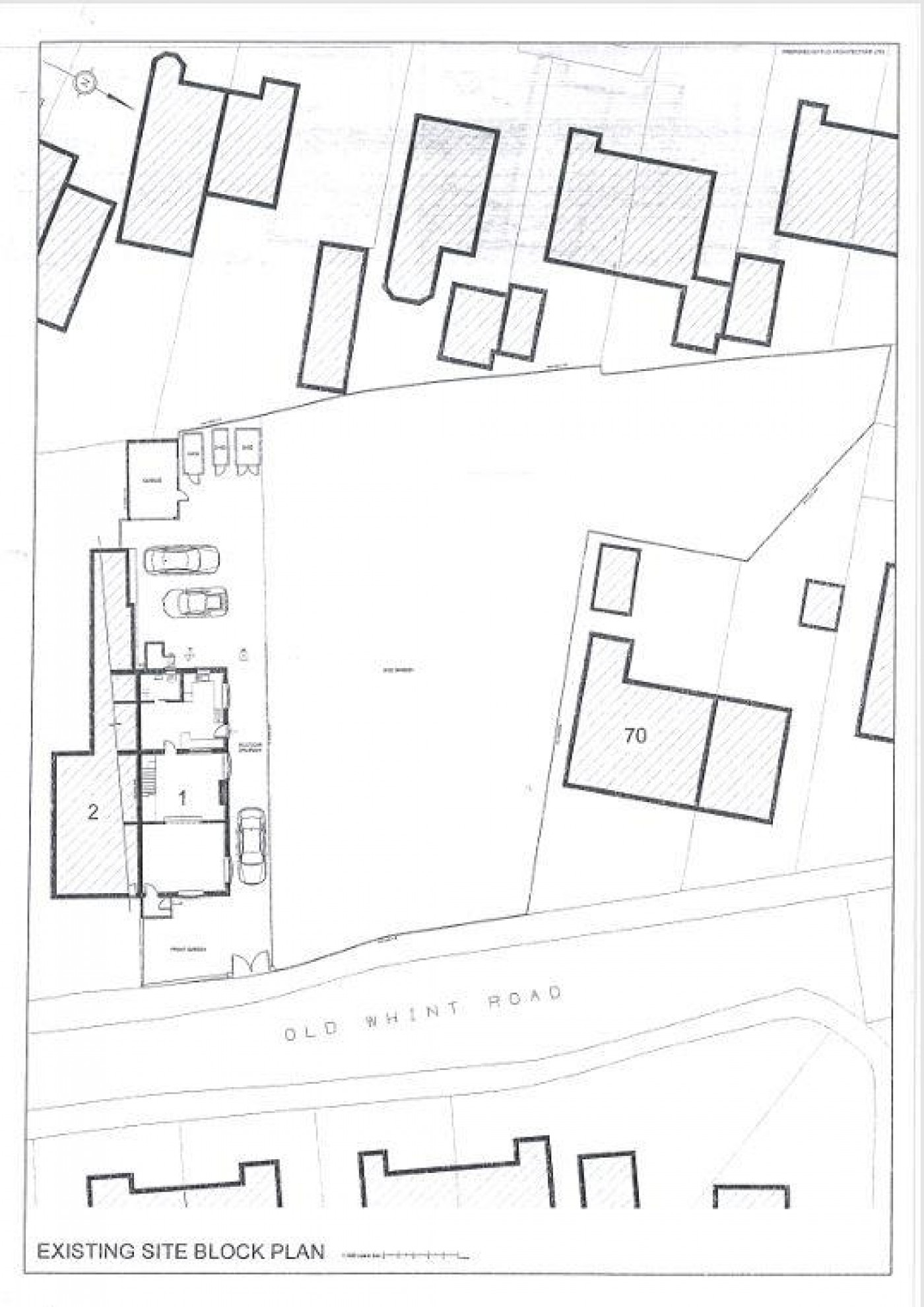
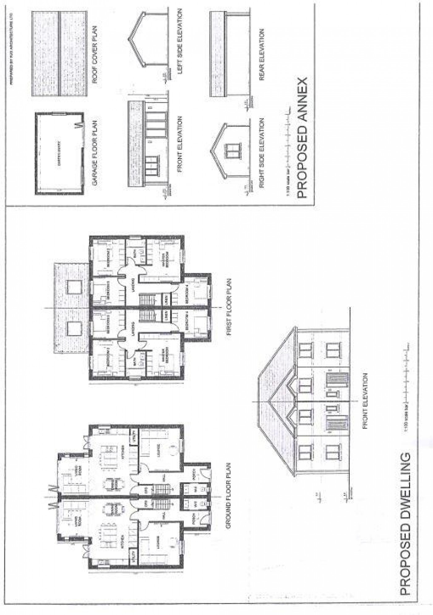
David Davies Sales & Lettings are pleased to present this unique development opportunity on Whint Cottages, Haydock. This substantial plot comes with proposed plans to build two four-bedroom semi-detached properties, one with an annex, making it an ideal investment for developers or those looking to create bespoke new homes.
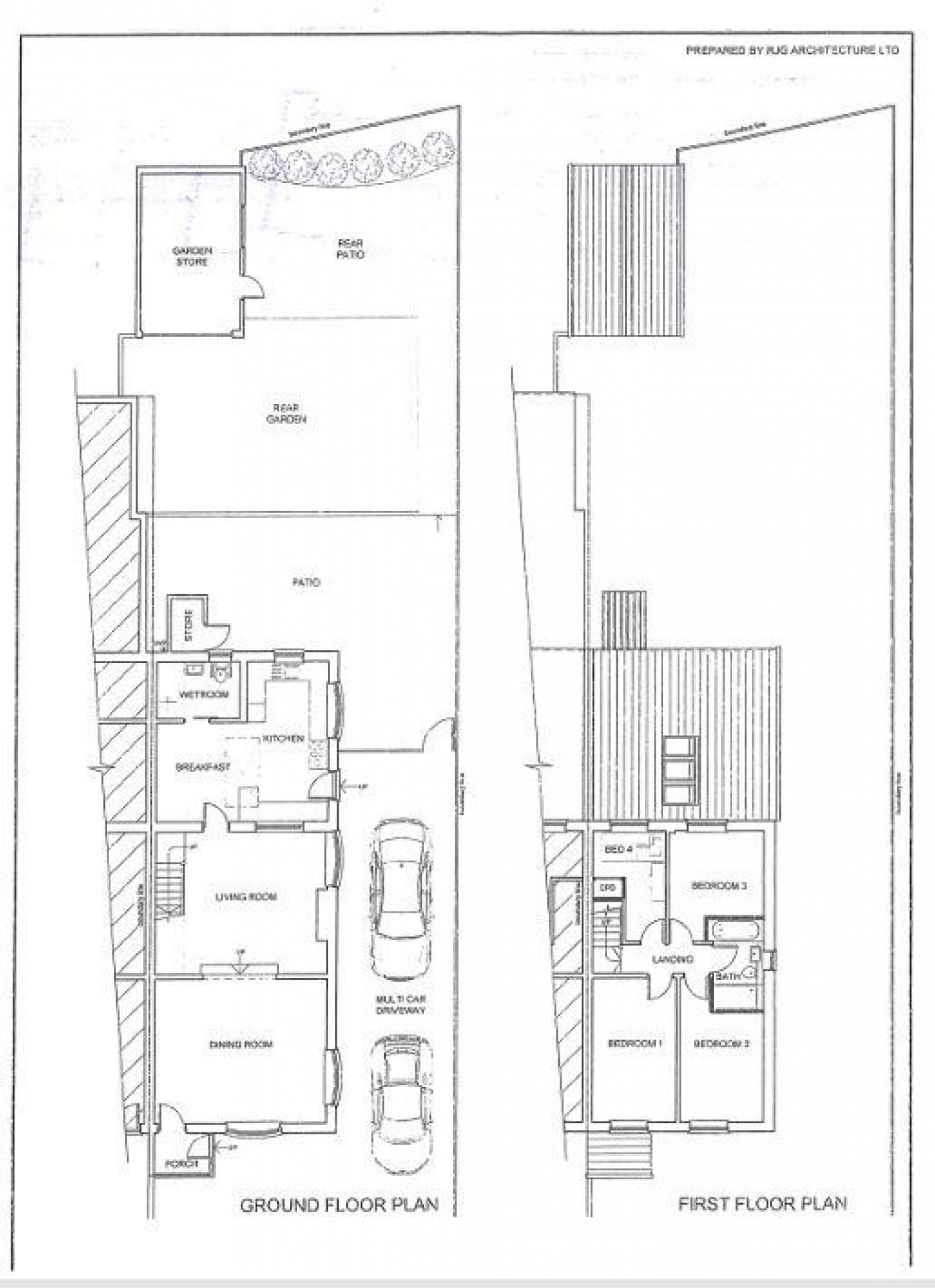
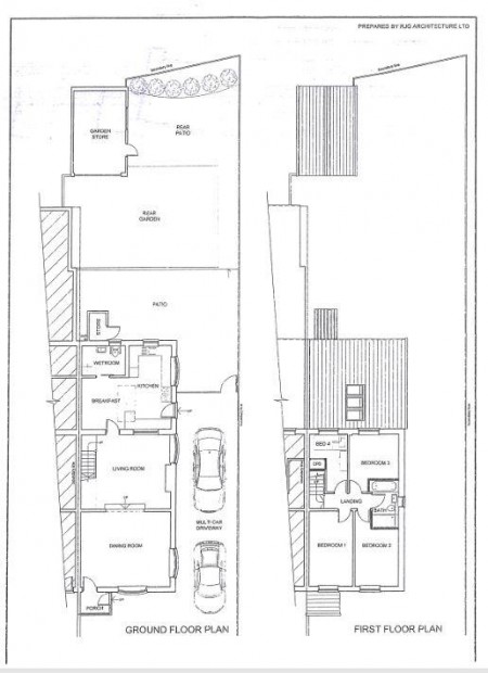
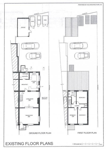
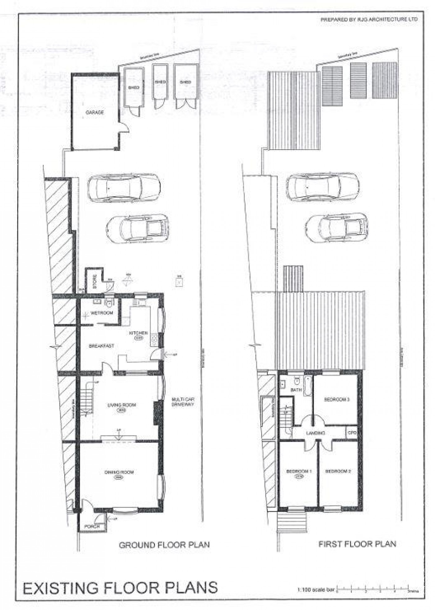
Included with the land is an extended three-bedroom semi-detached property, offering further potential. The existing home has proposed plans to be converted into a four-bedroom, providing added value to the site.
Planning permission was previously granted for the two new build properties; however, this has since expired, meaning a new application will be required.
The plot benefits from a substantial driveway, which would serve as access to the new builds, and is positioned in a sought-after location with excellent transport links via the A580 to Liverpool, Manchester, and beyond. Primary and secondary schools, as well as various amenities, are all within easy reach.
With no onward chain, this is a rare opportunity to acquire a prime development site with fantastic potential, subject to planning permission.
David Davies Sales & Lettings are pleased to present this unique development opportunity on Whint Cottages, Haydock. This substantial plot comes with proposed plans to build two four-bedroom semi-detached properties, one with an annex, making it an ideal investment for developers or those looking to create bespoke new homes.
Included with the land is an extended three-bedroom semi-detached property, offering further potential. The existing home has proposed plans to be converted into a four-bedroom, providing added value to the site.
Planning permission was previously granted for the two new build properties; however, this has since expired, meaning a new application will be required.
The plot benefits from a substantial driveway, which would serve as access to the new builds, and is positioned in a sought-after location with excellent transport links via the A580 to Liverpool, Manchester, and beyond. Primary and secondary schools, as well as various amenities, are all within easy reach.
With no onward chain, this is a rare opportunity to acquire a prime development site with fantastic potential, subject to planning permission.